
产品概述
QJ型井用潜水电泵是电机与水泵直联一体潜入水中工作的提水机具,它适用于从深井提取地下水、也可用于河流、水库、水渠等提水工程:主要用于农田灌溉及高原山区的人畜用水,亦可供城市、工厂、铁路、矿山、工地供排水使用。
产品特点
1、电机、水泵一体,潜入水中运行,安全可靠。
2、对井管、扬水管无特殊要求(即:钢管井、灰管井、土井等均可使用;在压力许可下、钢管、胶管、塑料管等均可作扬水管使用)。
3、安装、使用、维护方便简单,占地面积小、不需建造泵房。
4、结构简单、节省原材料。
潜水电泵使用的条件是否合适,管理得当与使用寿命有直接的关系。
型号意义


使用条件
本潜水电泵可在下列条件下连续运行使用:
1.额定频率为50HZ,额定电压为380±5%V的三相交流电源。
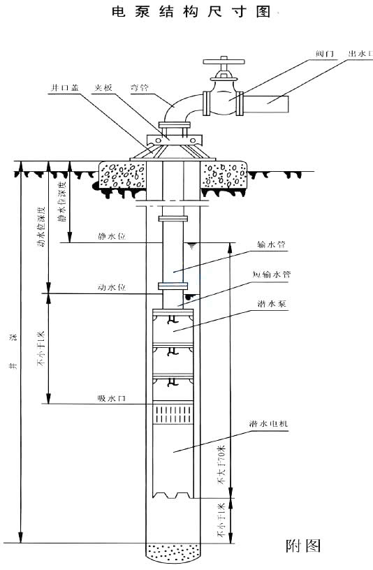
2.水泵进水口必须在动水位1米位以下,但潜水深度不得超过静水位以下70米,电机下端距井底水深最少在1米以上。
3.水温一般不得高于20℃.
4.水质要求:(1)水中含砂量不大于0.01%(重量比);
(2)PH值在6.5~8.5范围;
(3)氯离子含量不大于400毫克/升。
5.要求井正值,井壁光滑,不得有井管错开。
运行、维护、保养
1.电泵运行中要经常观察电流、电压表和水的流量,力求电泵在额定工况下运行。
2,应用阀门调节流量、扬程,不得超载运行。有下列情况之一应立即停止运行:
a、额定电压吋电流超过额定值:
b、额定扬程下,流量较正常情况下降低较大;
c、绝缘屯阻低于0.5兆欧;
e、动水位降至泵吸入口吋:
d、电器设备及电路不合规定时;
f、电泵有突然声响或较大的震动时:
g、保护开关频繁跳闸时。
3,要经常不断的观察仪表,检査电器设备每半个月测一次电机绝缘电阻,电阻值不低于0.5兆欧。
4,每排灌期(2500小时)进行一次检修保护,更换损坏的易损件。
5,电泵的起吊与装卸:
a 拆开电缆,断离电源;
b 用安装工具逐歩拆卸出水管、闸阀、弯管,并用夹板将泵吊起取出井盖,并用另一付夹板夹紧下一节输水管,这样依次,逐节拆卸将浆吊出井外。(在吊拆过程屮,发现有卡住不能强行起吊, 应上下左右活动克服卡点安全吊卸);
c 拆下护线板,滤水网并从引线和三芯电缆或扁电缆接头处剪断电缆:
d 取出联轴器上锁圈,拧下同定螺钉,拆卜连接螺检,使电机、水泵分离;
e 放出电机内充水:
f 水泵的拆卸:
用拆装扳手,卸下进水节,用拆装筒在泵下部冲击锥形套,叶轮松动后,取出叶轮、锥形套、卸下导流壳,这样依次卸完叶轮、导流壳、上导流壳、止回阀等。
g 电机拆卸:
依次拆下底座、止推轴承、推力盘、下导轴承座连接座、甩水器,取出转子,拆下卜.导轴承座、定了等。
6,电泵的装配:
装配前检査淸洗各零部件的铁锈、污泥,各配合面要涂黄油防锈,水泵大螺纹联接处要涂铅油。
<1>电机的装配次序:
定子组装一下导轴承座组装一转子组装一推力盘一左扣蟝母一止推轴承组装一底座组装一上3轴承座组装一骨架油封一连接座。调整螺柱,使电机轴伸符合规定的要求。然后上好调压膜、调压弹簧及盖。
<2>水泵的装配:
将轴和进水节同定在安装座上,用拆装筒将叶轮、锥形套固定在轴上,再装上导流壳、叶轮,…… 这样依次装完上流壳、止回阀等。
八级以下的电机水泵部分装配时,首先在进水节和上导轴承座接触平面间均匀分布,加相同3〜3,5 毫米垫片3〜4处,然后均匀I:好拉筋螺母,装卜一联轴器、泵轴、匕好固定蟝栓以及锁圈,用拆装简将时轮、锥形套固定'在泵轴上,再装上导流壳,叶轮……这样依次装完上导流壳等。泵装好后松开拉筋螺母,取出垫片,再把拉筋螺母均匀上紧,然后从联轴器处转动电泵,转动必须均匀。
〈3>机组总装,如前所述。
性能参数

结构说明
1.QJ型潜水电泵机组由:水泵、潜水电机(包括电缆)、输水管和控制开关四大部分组成。潜水泵为单吸多级立式离心泵:潜水电机为密闭充水湿式、立式三相鼠笼异歩电动机,电机与水泵通过爪式或中.键筒式联轴器直接;配备有不同规格的三芯电缆:起动设备为不同容量等级的空气开关和自耦减压起动器、输水管为不同直径的钢管制成,采用法兰联接,高扬程电泵釆用闸阀控制。
2.潜水泵每级导流壳中装有一个橡胶轴承;叶轮用锥形套固定在泵轴上:导流壳采用嫘纹或螺栓联成一体。
3.高扬程潜水泵上部装有止回阀,避免停机水锤造成机组破坏。
4.潜水电机轴上部装有迷宫式防砂器和两个反向装配的骨架油封,防止流砂进入电机。
5.潜水电机采用水润滑轴承,下部装有橡胶调压膜、调压弹簧,组成调压室,调节由于温度引起的压力变化;电机绕组采用聚乙烯绝缘,尼龙护套耐水电磁线,电缆联接方式按QJ型电缆接头工艺, 把接头绝缘脱去刮净漆层,分别接好,焊接牢固,用生橡胶绕-层。再用防水粘胶带缠2~3层,外面包上2〜3层防水胶布或用水胶粘结包一层橡胶带(自行车里胎〉以防渗水。
6.电机密闭,采用精密止口螺牷,电缆出口加胶塾进行密封。
7.电机上端有一个注水孔,有一个放气孔,卜部打个放水孔。
8.电机下部装有上卜—止推轴承,止推轴承上有沟槽用干冷却,和它对磨的是不锈钢推力盘,承爱水泵的上厂轴向力。
结构图

