
产品概述
SK系列水环真空泵及压缩机是用来抽吸或压送气体和其它无腐蚀性、不溶于水、不含有固体颗粒的气体,以便在密闭容器中形成真空或压力,满足工艺流程要求。吸入或压送的气体中允许混有少量的液体。
SK系列水环真空泵及压缩机广泛应用于机械、石油、化工、制药、陶瓷、制糖、印染、冶金及电子等行业。
由于在工作过程中,该类泵对气体的压缩是在等温状态下进行的,因此在压送或抽吸易燃易爆气体时,不易发生危险,所以其应用更加广泛。
工作原理
如图1所示,叶轮3偏心地安装在泵体2内,因此当叶轮3旋转时,水受离心力的作用而在泵体内壁形成一旋转水环5,水环上部内表而与轮毂相切沿箭头方向旋转,在前半转过程中,水环内表面逐渐与轮毂脱离,因此在叶轮叶片间与水环形成封闭空问,随着叶轮的旋转,该空间逐渐扩大,空间气体压力降低.气体被吸入空间:在后半转过程中, 水环内表面渐渐与轮毂禹靠近,叶片间的空间逐渐缩小,空间气体压力升高,高于排气口压力时,叶片间的气体被排出, 如此叶轮每转动一周,叶片间的空间吸排一次,许多空间不停地工作,泵就连续不断地抽吸或压送气体。
由于在工作过程中,做功产生热量,会使工作水环发热,同时一部分水和气体一起被排走,因此,在工作过程中, 必须不断地给泵供水,以冷却和补充泵内消耗的水,满足泵的工作要求。
当泵排出的气体不再利用时.在泵排气一端接有气水分离器(可自己制作一水箱代替),废水和所带的部分水排入气水分离器后,气水分离,气体由抹气管抹出,留下的水经回水管供至泵内继续使用。随着工作时间的延长,工作水温度会不断地升高.这时需从气水分离器的供水处供给一定的冷水(自来水),以降低工作水的温度,保证^能达到所要求的技术要求和性能指标。
当作为压缩机使用时,泵排气11接有气水分离器,气水混合物进入气水分离器后自动分离,气体由排气管输送到所需系统而工作水经过自动溢于开关放出,压缩气体时,工作水极易发热,水由泵出口排出,温度会变得较高,因此在气水分离器的底部.要不断地供给冷水,以补充被放走的热水,问时起冷却作用.使工作水温度不致过髙,从而保证压缩机性能,达到技术指标.满足工艺要求。
启动及停车
1.启动:
长期停车的泵在开动以前,必用手转动数周,以证实泵内没有卡信或其它损坏现象。启动按以下顺序进行(参见设备说明图)。
1) 关闭进气管路上的闸阀4;
2) 启动电动机(从传动方向看,电机为顺时针方向旋转,右侧为吸气口,左侧为排气口)。泵为机械密封,应先给机械密封加水再起动电动机;
3) 打开供水管上的阀门6〖或直接用自来水向泵内供水扒逐渐增加供水量,至供水量符合规定要求为止;
4) 当泵达极限真空或最大压力时,打开进气管路上的间阀2,泵开始正常工作;
5) 调整填料压盖,使水成滴往外滴为好;
6) 由阀门来调整气水分离器向泵供水量,以便在要求的技术条件下运转,使功率消耗最小,达到性能指标,满足工作要求;
7) 调整供水管供给气水分离器的水量,以便用最小的水耗量,保证泵内所要求的技术规范;
8) 泵在极限压力下工作时,泵内可能由于物理作用而发生爆炸声,但功率消耗并不增大,可将进气管路上的阀门打开,使之进入少量气体,爆炸声即行消失。如果爆炸声不消失,且功率消耗增大,则表明泵已发生故障,应停车检修。
2.停车
停车应按以下顺序:
1) 关闭进气管上的阀门(做压缩用时应先关闭排气管上的阀门,然后关闭吸气阀);
2) 关闭供水管路上的闸阀,停水后,不应立即停泵,应使泵继续运转1-2分钟,排出部分工作液。泵为机械密封,机械密封的冷却水不能关闭;
3) 关闭电动机,再关闭机械密封冷却水;
4)如果停车时间超过一天,必须将泵及气水分离器内的水放掉,以防锈蚀。
维护
1.经常检査轴承的工作和润滑情况。
2.正常工作的轴承比周围温度高15℃-20℃,最高不允许超过55℃-60℃:,正常工作的轴承每年应装油3-4次。每年至少清洗轴承一次,并将润滑油牵部更换。
3.如果是填料密封,应定期地压紧填料,如果填料因磨损而不能保证所需要的密封性能时,应更换新填料。填料不能压得过紧。正常压紧的填料,允许水成滴滴出,以保证冷却和加强密封性。
如果采用机械密封,出现泄漏现象,应检查机械密封的动、静环是否已损坏,或是密封圈已老化,如出现上述情况,均需更换新零件。
拆卸及装配
拆卸:
泵的拆卸分为部分拆卸检査和完全拆卸修理及更换零件,在拆卸前应将泵腔内的水放出.并将进气及排气拆下。在拆卸过程中,应将所有的垫谨慎地取下,如发生损坏'应在装配时更抽象同样厚度的新垫。泵应从后端(无联轴器一端) 开始拆卸,其顺序如下:
1 《松开并取下两连通管(SK-1.5/3无连通管);
2 松开并取下后轴承压盖;
3 用钩板手将圆螺母松开,取下填料压盖;
4 松开填料压盖螺帽,取下填料压盖:
5 松开泵体和端盖的联接螺栓和泵脚处的累栓;
6 在泵体下加一支承,然后从轴上取下端盖;
7 取下泵体。泵的部分拆卸至此为止,此时泵的工作部分及各个进零件可进行检查及清洗。完全拆卸,应按下列顺序继续进行;
8 松开另一个泵脚螺栓,从底座上取下泵头;
9 取下联轴器
10 从轴上取下联轴器的键
11 取下前轴承压盖;
12 松开轴承备背帽,取下轴承架和轴承;
13 松开填料压盖的压紧螺帽,取下填料压盖;
14 将轴和叶一同从端盖中取出;
15 从轴上取下轴套;
16 从轴上取叶轮。
拆卸完毕,应将配合面和和螺纹仔细擦净涂上机油。
装配:
① 装配前清洗留在配合面上的垫并仔细擦净:
② 清除轴承和轴承架内的旧油并更换新油:
③ 装配顺序与拆卸顺序相反。
装配时最主要的是调整叶轮端面和端盖上园盘的间隙,间隙的大小,直接影响泵的性能,两边总间隙按下表规定间隙,由泵体和端盖之间加垫获得,叶轮两端面间隙应均匀,可松紧轴套或背帽以移动叶轮来调整。
|
性能参数
|
||||||||||||||||||||||||||||||||||||||||||||||||||||||||||||||||||||||||||||||||||||||||||||||||||||||||||||||||||||||||||||||||||||||||||||||||||||||||||||||||||||||||||||||||||
设备安装
|
设备说明
SK系列水环真空泵及压缩机系统由真空泵(压縮机)、联轴器、电动机、气水分离器及竹路组成。
真空泵及压缩机与气水分离器的工作过程如下:气体由管路经阀门进入真空泵或压缩机,然后经导气巧管排入气水分离器中,经气水分离器排气管排出,当作为压縮机用时,经压縮机排出的气水混合物在'〔水分离器屮。气体经阆门输送到^要压縮气体的系统上去,而水则留在气水分离器中。为使气水分离器的水位保持一定而装有自动溢水开关, 当水位高于所要求水位时,溢水开关打开.水从溢水符溢出:当水位低于要求水位时,溢水开关关闭,气水分离器中水位上升,达到所要求水位,真空泵或压縮机内的工作水是由气水分离器供给(也可用自来水)的,供水盘的大小直接影响真空泵的性能,因此由供水管上的阀门?淼蛘�
气体抽吸和压送系统的区别仅在于气水分离器的内部结构有所不问。抽吸气体时,吸气口压力低于大气压,而排气口压力等于大气压,气水分离器只有溢水管:压送气体时吸气口为常压(也可为真空状态),排气口压力髙于一个大气压,为保证输送气体压力,气水分离器的水位通过溢水丌关来控制。
设备安装
1.泵和电机的安装
真空泵和压缩机在安装前,先用手转动一下联轴器,以证实泵内是否有卡信及其它损坏现象。整套设备运抵安装地点时,包装己损坏或在存放时受潮湿,以及泵在出厂后六个月再行安装使用时,应在安装前全部拆开检査修理。如果真空泵或压缩机运转正常,将泵安装在泵座上。电动机固定在泵座上以前,应校正电动机轴与泵轴的同心度,因为电动机与泵轴即使是极小的倾斜也会引起轴承发热和零件的严重磨损等后果。将直尺平行放在联轴器上,在整个圆周的任何位置都与联轴器圆周密合没有间隙,且联轴器的轴向间隙都相等时,则达到了所要求的同心度(如图)。
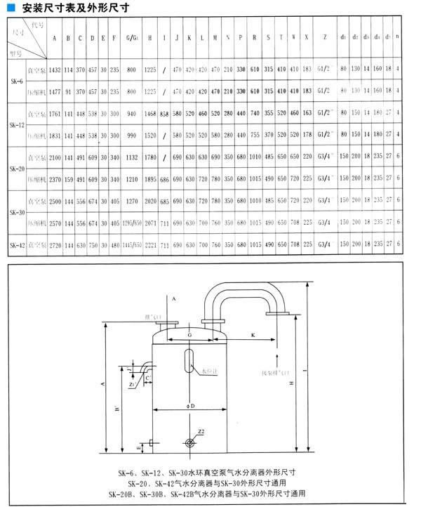
2.气水分离器的安装
气水分离器根据外形图安装在地基上。
若有必要改变安装位置时,应注意分离器与泵的连接管路不得过长,转弯不得过急,否则气水混合物在管路中流动损失必将增加,增大了排气阻力,会因此降低流量和真空度,增加功率消耗。
气水分离器的进气口法兰与泵排气口法兰之间由弯管连接,气水分离器底部,有一管路与泵相连,由此供给泵正常工作所需水量,供水量大小由管路上的阀门调节,气水分离器另有一管路,管路上装阀门,消耗的工作水由此补充。
3.泵与气水分离器间管路安装
真空泵或压縮机的排气管与气水分离器的进气管相连,当作为压缩机使用时,气水分离器的排气管与利用压缩气体的系统相连,一般情况下,要求管路不得过长,转弯不得过急。当作真空泵用时,气体由气水分离器的排气口排至大气,若为改善工作环境,可将气体通过管路排至工作地点以外。
管路法兰盘连接处,应用垫片使其可靠密合,尤其是泵的进气^路稍有不严密之处,就不能达到预定的真空度。
真空泵或压縮机的进气管上应装有库阀,以便在停车时,先行关闭,防止真空泵或压縮机内的水在排气管方面的
压力作用下返回系统。为方便工作,最好在进气口与阀门之间安装一只真空表,以便随时检査真空的工作情况是否正常。当作为压缩机使用时,应在气水分离器的排气管路上安装闸阀,(最好为单向阀以保证发生异常情况时,不致使气体返回,以致使工作水返回系统),在排气管和阀门之间安装一只压力表,可随时检査压送气体是否达到所需压力。
另外注意:管路应加装细网过滤装置.(其孔眼不大于0.5mm)防止杂物进入泵内,对泵产生损坏。
4.调节结构
SK系列水环真空泵是用安装在进气管路上的阀门来调整真空度和流量。阀门以任何一种形式,安装在排气管路上, 以便调节被压送气体的压力。被压缩气体根据其使用条件不许将其排出时,应在排气管对排气管之间装一导气管,其直径与装在其上的阀门直径相同,以便在很大限度内调节气量.
|
性能曲线
![]() |
结构图
|
结构说明
泵的结构如图2、图3、图4所示。
泵由泵体、两个端盖、叶轮、轴等部件组成。进气和排气竹通过安装在端盖上的园盘上的吸气孔和样气孔与泵腔相连,轴偏心地安装在泵体中,叶轮用平键固定在轴上。泵两端而的总间隙山泵体和园盘之间的垫来调整,叶轮与端盖上的园盘之间的间隙由轴套(SK-1.5/3/6)或背帽(SK-12/20/30)推动叶轮来调整,而(SK-42以上轴与叶轮为过盈配合,此间隙由前端定位时确定.SK-42-60-85-120无轴套,其余结构与SK-6/12/20/30相同。叶轮两端面与端盖园盘的间隙决定气体在泵腔内由进气口至排气口流动中损失的大小及其极限压力。
填料安装在两端盖内,密封水经由端盖中的小孔进入填料中,冷却填料及加强密封效果。叶轮形成水环所需的补充水由供水管供给,供水管可与气水分离器连在一起循环供水。
密封形式采用机械密封,机械密封安装在填料空腔里,填料省略。填料压盖换成机械密封压盖,其余结构相同。
轴承由园螺母固定在轴上,
在端盖上安装有园盘,园盘上设有吸、排气孔和橡胶球阀的作用是当叶轮叶片间的气体压力达到排气压力时,在排气口以前就将气体排出,减少了因气体压力过大而消耗的功率,从而降低功率消耗。
![]() |
安装尺寸
|
|










