
QZ型潜水轴流泵产品简介
潜水泵站因土建简单,工程造价低,维护管理简便易于自动化,工作可靠性好,美化环境而得到迅速发展。
潜水泵站的主要设备-潜水电泵(简称潜水泵),有QZ型潜水轴流泵和HW型潜水轴流泵,是将电机与轴流泵和混流泵结合而成的机电合一产品,是传统长轴轴流泵和混流泵的更新换代产品。
潜水泵与传统长轴泵除使用场合、进出水每件]特性参数基本上保持一致外。还具有以下几点显著优势:
1,泵站工程总投资节省30%以上;
2,建设周期节约40%以上;
3,机组安装时间节约95%以上;
4,机组重量减轻50%以上;
5,省去泵站防洪墙投资;
6,维护费用低;
7,无运转噪音,操作简便,易于自动化运行;
8,地面建筑高度低,可省去泵房建筑,甚至可在地面以下建泵站。
因此,轴流泵和混流泵的新老客户,在新建泵站项目中可以方便地以潜水泵替代,可在老泵站改造项目中以潜水泵更新,此类泵型主要适用于下列场合:
1,农田灌溉与水利;
2,市政排放雨水及轻度污水;
3,工业中工艺用水、冷却水;
4,水利中调水工程。
本公司潜水泵名义出水口径从350、500、600、700、800、900、1000、1200、400、1600共计十种口径,流量范围0.12--12m*m*m/s,扬程范围2--14m;功率范围7.5--630KW;电压等级380V、66V、3KV、6KV、10KV。
QZ型潜水轴流泵型号说明
·潜水轴流泵

·潜水混流泵

QZ型潜水轴流泵结构说明
QZ潜水混流泵,泵段由进水喇叭口,叶轮部位,叶轮外壳和导叶体四大零件组成。
潜水电机是全密封干式异步电动机,机壳将电机封闭,电机上端电缆出线处有静密封装车,电机下端盖出轴处有转动密封装置,潜水电机具有一切运行的安全可靠性能。对密封渗漏、线圈和轴承温升均有监测、报警和保护装置,不影响电机正常运转的早期渗漏(只报警)。当线圈温度超过135℃、轴承温度超过90℃时,采用断电保护,所有保护器由一个潜水泵专用保护器进行监控,以保证潜水泵的安全使用。
![]() QZ型潜水轴流泵结构总图 |
1、接线盒盖 2、上端盖 3、渗漏报警器 4、上轴承 5、热保护器 6、定子 7、转子 8、下轴承 9、渗漏报警器 10、下端盖 11、上机械密封 12、电极探头 13、下机械密封 14、导叶体 15、叶轮部件 16、叶轮外壳 17、进口喇叭 |
![]() QH型潜水流泵结构总图 |
1、接线盒盖 2、上端盖 3、渗漏报警器 4、上轴承 5、热保护器 6、定子 7、转子 8、下轴承 9、渗漏报警器 10、下端盖 11、上机械密封 12、电极探头 13、下机械密封 14、导叶体 15、叶轮部件 16、进口喇叭 |
![]() 潜水流轴泵、混流泵内部传感器布置图 |
传感器输送信号由潜水电泵保护器接受。该保护器对每一个输出信号,包括开关量或模拟量分别输出一个开关信号,并在保护器上显示出报警闪光信号。 |

QZ型潜水轴流泵性能参数
(一)轴流泵(QZ)性能参数与型谱
| ·3500QZ-70G | ·350QZ-70D | ·350QZ-100 | ·350QZ-125 | ·500QZ-70G |
| ·500QZ-70D | ·500QZ-100GA | ·500QZ-100DA | ·500QZ-100GB | ·500QZ-100DB |
| ·500QZ-125G | ·500QZ-125D | ·500QZ-160D | ·500QZ-160G | ·600QZ-70 |
| ·600QZ-100G | ·600QZ-100D | ·600QZ-125 | ·600QZ-160G | ·600QZ-160D |
| ·700QZ-50 | ·700QZ-70G | ·700QZ-70D | ·700QZ-100G | ·700QZ-100D |
| ·700QZ-125G | ·700QZ-125D | ·700QZ-160G | ·700QZ-160D | ·800QZ-50 |
| ·800QZ-70G | ·800QZ-70D | ·800QZ-100G | ·800QZ-100D | ·800QZ-125G |
| ·800QZ-125D | ·900QZ-50 | ·900QZ-70 | ·900QZ-100G | ·900QZ-100D |
| ·900QZ-125 | ·900QZ-180 | ·1000QZ-50 | ·1000QZ-70 | ·1000QZ-100 |
| ·1000QZ-125 | ·1000QZ-160 | ·1200QZ-70 | ·1200QZ-100 | ·1200QZ-125 |
| ·1200QZ-160 | ·1300QZ-70 | ·1300QZ-100 | ·1300QZ-125 | ·1300QZ-160 |
| ·1400QZ-70 | ·1400QZ-100 | ·1400QZ-125 | ·1400QZ-160 | ·1600QZ-100 |
| ·1600QZ-125 | ·1600QZ-160 | |||
(二)混流泵(QH)性能参数与型谱
| ·500QH0.6-8 | ·600QH0.7-12 | ·600Q.7-12A | ·600QHB0.8-16 | ·700QH0.9-10 |
| ·700QH0.9-10 | ·700QH1.2-12 | ·700QH1.4-16A | ·900QH1.8-10 | ·900QH1.8-10A |
| ·900QH1.7-12 | ·900QH1.7-12A | ·900QH2.2-16 | ·1000QH2.6-12 | ·1000QH2.6-12A |
| ·1200QH3.1-12 | ·1200QH3.1-12A | |||
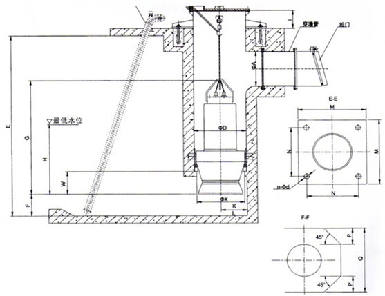
QZ型潜水轴流泵安装形式及尺寸
较小的QZ潜水轴流泵、QH潜水混流泵用开关敞式进水,安装形式为井筒弯管式安装、钢制井筒式安装、混凝土预制井筒式安装。井筒弯管式安装、钢制井筒式安装由本公司提供整套井筒,混凝土预制井筒式安装由本公司提供安装底座(含防转装置)、井盖。
安装时,将潜水电泵吊入井筒着底为止,导叶体上的斜面与支架座斜面配合,止水橡皮(O型圈)起密封作用。
较大的潜水泵(叶轮直径一般在1米以上),采用带封闭进水流道的安装形式
1、井筒弯管式安装及尺寸

注:
(1)、表中尺寸为泵的安装尺寸与泵站设计的水力控制尺寸。其中泵站设计的水力尺寸仅作为参考值。
(2)、尺寸A依据流量确定,以控制流速,减少水力损失,表中尺寸为参考值。如需要,可适当加大;尺寸E、J依据泵站具体条件确定;尺寸R为最小参考值,如条件许可,可适当加大。 上述尺寸均依据客户要求确定。
(3)、泵中心距后池壁≤K。
(4)、同池两泵中心距≥L。
2、钢制井筒式安装及尺寸

注:
(1)、表中尺寸为泵的安装尺寸与泵站设计的水力控制尺寸,其中泵站设计的水力尺寸仅作为参考值。
(2)、尺寸A依据流量确定,以控制流速,减少水力损失,表中尺寸为参考值,如需要,可适当加大;尺寸E、J、R依据泵站具体条件确定。
(3)、泵中心距池壁≤K。
(4)、同池两泵中心距≥L。
3、混凝土预制井筒式安装及尺寸

注:
(1)、表中尺寸为泵的安装尺寸与泵站设计的水力控制尺寸。其中泵站设计的水力尺寸仅作为参考值。
(2)、尺寸A依据流量确定,以控制流速,减少水力损失,表中尺寸为参考值。如需要,可适当加大;尺寸E依据泵站具体条件确定;尺寸R为最小参考值,如条件许可,可适当加大。
(3)、泵中心距后池壁≤K。
(4)、同池两泵中心距≥L。
4、封闭进水流道的混凝土预制井筒式安装及尺寸
簸箕形进水流道

注:
(1)、进水流道可配肘形、钟形、簸箕形流道,安装尺寸表中的流道尺寸为簸箕形流道(仅供参考)。
(2)、淹没深度除需要满足表中要求外,还必须比流道进口上缘至少高500mm。
(3)、一般来说,泵段安装尺寸由供货方提供,淹没深度由供货方与设计方共同确定。再通过装车试验验证确定;进出水流道的几何尺寸由设计单位按规范进行数模计算,初步确定后再进行装置模型试验,厂家提供的流道几何尺寸供设计单位设计时参考。
(4)、供货方提出的流道几何尺寸仅供用户现设计方参考。



