

泵的维护保养
1、电泵应有专人管理与使用,并定期检査电泵绕组与机壳之间的绝缘电阻是否正常。
2、毎次使用特别是用于较稠较粘的介质后,应将电泵放入清水中运行数分钟,防止泵内留沉积物,保证电泵的清洁。
3、屯泵拆卸、维修后,机壳组件必须经0.2MPa气压试验检验,确保电机和油室密封可靠.
故障与排除
| 故障现象 | 原因分析 | 排除方法 |
| 不能启动与运转 |
1、电机太低
2、叶轮被杂物卡住
3、螺帽或平键损坏致使叶轮打滑
|
1、调节电压或在电压正常时工作
2、清除杂物
3、更换损坏零件
|
| 超负荷 |
1、转子部件卡滞或过流部件被异物卡住
2、轴承损坏、轴变形
|
1、重新装配、清除异物
2、更换轴承、校正轴
|
| 流量不足 |
1.吸入口或输出管被阻
2、电机转速低于额定转速
3、叶轮打坏
4、扬程过高
5、旋向相反
6、介质太稠或供应量不畅通
|
1、清除杂物,保证畅通
2、提高转速
3、更换叶轮
4、降低扬程
5、改换转向
6、冲稀介质,增大供应量
|
| 噪声与振动 |
1、叶轮与泵体有磨擦2、轴承损坏或少油
3、螺帽松动
4、泵体中有杂物
5、吸入口有空气渗入
|
1、检査泵的装配并进行调整
2、更换轴承成加油
3、更换螺帽
4、清除杂物
5、控制最低水位
|
|
型号
|
排出
口径 (mm) |
额定
流量 (m3/h) |
额定
扬程 (mm) |
搅拌
直径 (mm) |
转速
(r/min) |
效率
(%) |
自动
耦合器 |
|
JYWQ |
50
|
12
|
15
|
1200
|
2900
|
48
|
CAK-50
|
|
JYWQ50- |
50
|
20
|
7
|
1200
|
2900
|
62
|
CAK-50
|
|
JYWQ |
50
|
10
|
10
|
1200
|
2900
|
56
|
CAK-50
|
|
JYWQ50-15-15-1200-2.2 |
50
|
15
|
15
|
1200
|
2900
|
51
|
CAK-50
|
|
JYWQ50- |
50
|
25
|
10
|
1200
|
2900
|
65
|
CAK-50
|
|
JYWQ50-15-20-1200-2.2 |
50
|
15
|
20
|
1200
|
2900
|
56
|
CAK-50
|
|
JYWQ50-20-15-1200-2.2 |
50
|
20
|
15
|
1200
|
2900
|
56
|
CAK-50
|
|
JYWQ50-42-9-1200-3 |
50
|
42
|
9
|
1200
|
2900
|
56
|
CAK-50
|
|
JYWQ50-17-25-1200-3 |
50
|
17
|
25
|
1200
|
2900
|
56
|
CAK-50
|
|
JYWQ50-25-22-1200-4 |
50
|
25
|
22
|
1200
|
2900
|
62
|
CAK-50
|
|
JYWQ50-40-15-1400-4 |
50
|
40
|
15
|
1400
|
2900
|
70
|
CAK-50
|
|
JYWQ50-25-32-1600-5.5 |
50
|
25
|
32
|
1600
|
2900
|
52
|
CAK-50
|
|
JYWQ50-40-30-1600-7.5 |
50
|
40
|
30
|
1600
|
2900
|
68
|
CAK-50
|
|
JYWQ65-25-15-1400-3 |
65
|
25
|
150
|
1400
|
2900
|
65
|
CAK-65
|
|
JYWQ65-37-13-1400-3 |
65
|
37
|
13
|
1400
|
2900
|
62
|
CAK-65
|
|
JYWQ65-25-28-1400-4 |
65
|
25
|
28
|
1400
|
2900
|
60
|
CAK-65
|
|
JYWQ80-40-7-1600-2.2 |
80
|
40
|
7
|
1600
|
2900
|
54
|
CAK-80
|
|
JYWQ80- |
80
|
29
|
8
|
1600
|
2900
|
54
|
CAK-80
|
|
JYWQ80-43-13-1600-4 |
80
|
43
|
13
|
1600
|
2900
|
63
|
CAK-80
|
|
JYWQ80-50-10-1600-3 |
80
|
50
|
10
|
1600
|
1450
|
76
|
CAK-80
|
|
JYWQ80-40-15-1600-4 |
80
|
40
|
15
|
1600
|
2900
|
70
|
CAK-80
|
|
JYWQ80-60-13-1600-4 |
80
|
60
|
13
|
1600
|
2900
|
70
|
CAK-80
|
|
JYWQ80-35-25-1600-5.5 |
80
|
35
|
25
|
1600
|
2900
|
64
|
CAK-80
|
|
JYWQ80-50-25-1600-7.5 |
80
|
50
|
25
|
1600
|
2900
|
70
|
CAK-80
|
|
JYWQ80-50-30-1600-7.5 |
80
|
50
|
30
|
1600
|
2900
|
70
|
CAK-80
|
|
JYWQ100-80-9-2000-4 |
100
|
80
|
9
|
2000
|
1450
|
62
|
CAK-100
|
|
JYWQ100-110-10-2000-5.5 |
100
|
110
|
10
|
2000
|
1450
|
71
|
CAK-100
|
|
JYWQ100-70-15-2000-5.5 |
100
|
70
|
15
|
2000
|
1450
|
71
|
CAK-100
|
|
JYWQ100-100-15-2000-7.5 |
100
|
100
|
15
|
2000
|
1450
|
73
|
CAK-100
|
|
JYWQ100-80-20-2000-7.5 |
100
|
70
|
20
|
2000
|
2900
|
71
|
CAK-100
|
|
JYWQ100-50-35-2000-11 |
100
|
100
|
35
|
2000
|
2900
|
68
|
CAK-100
|
|
JYWQ100-70-22-2000-7.5 |
100
|
80
|
22
|
2000
|
2900
|
70
|
CAK-100
|
|
JYWQ100-100-22-2000-15 |
100
|
150
|
22
|
2000
|
1450
|
61
|
CAK-100
|
|
JYWQ100-80-30-2000-15 |
100
|
210
|
30
|
2000
|
1450
|
67
|
CAK-100
|
|
JYWQ150-150-10-2000-7.5 |
150
|
250
|
10
|
2000
|
1450
|
75
|
CAK-150
|
|
JYWQ150-210-7-2500-7.5 |
150
|
150
|
7
|
2500
|
1450
|
78
|
CAK-150
|
|
JYWQ150-250-6-2500-7.5 |
150
|
200
|
6
|
2500
|
1450
|
79
|
CAK-150
|
|
JYWQ150-150-15-2500-11 |
150
|
65
|
15
|
2500
|
1450
|
79
|
CAK-150
|
|
JYWQ150-200-10-2500-15 |
150
|
180
|
10
|
2500
|
1450
|
73
|
CAK-150
|
|
JYWQ150-65-40-3200-18.5 |
150
|
150
|
40
|
3200
|
1450
|
58
|
CAK-150
|
|
JYWQ150-180-22-2600-18.5 |
150
|
110
|
22
|
2600
|
1450
|
75
|
CAK-150
|
|
JYWQ150-150-26-2600-18.5 |
150
|
300
|
26
|
2600
|
1450
|
72
|
CAK-150
|
|
JYWQ150-110-30-2600-18.5 |
150
|
130
|
30
|
2600
|
1450
|
72
|
CAK-150
|
|
JYWQ150-300-15-2600-22 |
150
|
100
|
15
|
2600
|
1450
|
76
|
CAK-150
|
|
JYWQ150-130-30-2600-22 |
150
|
300
|
30
|
2600
|
1450
|
70
|
CAK-150
|
|
JYWQ150-100-40-3000-30 |
150
|
250
|
40
|
3000
|
1450
|
64
|
CAK-150
|
|
JYWQ200-300-7-3000-11 |
200
|
300
|
7
|
3000
|
1450
|
75
|
CAK-200
|
|
JYWQ200-250-11-3000-15 |
200
|
250
|
11
|
3000
|
1450
|
72
|
CAK-200
|
|
JYWQ200-300-10-3000-15 |
200
|
300
|
10
|
3000
|
1450
|
75
|
CAK-200
|
|
JYWQ200-250-15-3000-18.5 |
200
|
250
|
15
|
3000
|
1450
|
72
|
CAK-200
|
|
JYWQ200-400-10-3000-22 |
200
|
400
|
10
|
3000
|
1450
|
75
|
CAK-200
|
|
JYWQ200-200-20-3000-22 |
200
|
200
|
20
|
3000
|
1450
|
73
|
CAK-200
|
|
JYWQ200-250-22-3000-30 |
200
|
250
|
22
|
3000
|
1450
|
73
|
CAK-200
|
|
JYWQ250-600-7-3000-22 |
250
|
600
|
7
|
3000
|
1450
|
78
|
CAK-250
|
|
JYWQ250-600-9-3000-30 |
250
|
600
|
9
|
3000
|
1450
|
78
|
CAK-250
|
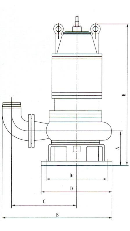
安装尺寸示意图

|
序号 |
型 号 |
A |
B |
C |
D1 |
D |
H |
|
1 |
50-12-15-1200-1.5 |
135 |
400 |
245 |
225 |
255 |
670 |
|
2 |
50-20-7-1200-1.1 |
132 |
343 |
225 |
150 |
180 |
610 |
|
3 |
50-10-10-1200-1.1 |
132 |
343 |
225 |
150 |
180 |
610 |
|
4 |
50-15-15-1200-2.2 |
135 |
400 |
245 |
225 |
255 |
670 |
|
5 |
50-25-10-1200-2.2 |
135 |
400 |
245 |
225 |
255 |
670 |
|
6 |
50-15-20-1200-2.2 |
135 |
400 |
245 |
225 |
255 |
670 |
|
7 |
50-20-15-1200-2.2 |
135 |
400 |
245 |
225 |
255 |
670 |
|
8 |
50-42-9-1200-3 |
143 |
420 |
265 |
225 |
255 |
750 |
|
9 |
50-17-25-1200-3 |
130 |
433 |
265 |
240 |
285 |
750 |
|
10 |
50-25-22-1200-4 |
135 |
400 |
245 |
225 |
255 |
735 |
|
11 |
50-40-15-1400-4 |
143 |
420 |
265 |
225 |
255 |
750 |
|
12 |
50-25-32-1600-5.5 |
180 |
480 |
295 |
270 |
320 |
820 |
|
13 |
50-40-30-1600-7.5 |
180 |
480 |
295 |
270 |
320 |
820 |
|
14 |
65-25-15-1400-3 |
143 |
435 |
270 |
225 |
255 |
750 |
|
15 |
65-37-13-1400-3 |
143 |
435 |
270 |
225 |
255 |
750 |
|
16 |
65-25-28-1400-4 |
180 |
515 |
317 |
270 |
320 |
800 |
|
17 |
80-40-7-1600-2.2 |
143 |
465 |
295 |
225 |
255 |
685 |
|
18 |
80-29-8-1600-2.2 |
143 |
465 |
295 |
225 |
255 |
685 |
|
19 |
80-43-13-1600-4 |
143 |
465 |
295 |
225 |
255 |
750 |
|
20 |
80-50-10-1600-3 |
180 |
570 |
325 |
280 |
320 |
790 |
|
21 |
80-40-15-1600-4 |
143 |
465 |
295 |
225 |
255 |
750 |
|
22 |
80-60-13-1600-4 |
143 |
465 |
295 |
225 |
255 |
750 |
|
23 |
80-35-25-1600-5.5 |
180 |
550 |
305 |
270 |
320 |
820 |
|
24 |
80-50-25-1600-7.5 |
180 |
550 |
305 |
270 |
320 |
820 |
|
25 |
80-50-30-1600-7.5 |
180 |
550 |
305 |
270 |
320 |
820 |
|
26 |
100-80-9-2000-4 |
180 |
600 |
386 |
280 |
320 |
790 |
|
27 |
100-110-10-2000-5.5 |
200 |
700 |
440 |
370 |
410 |
900 |
|
28 |
100-70-15-2000-5.5 |
200 |
690 |
430 |
370 |
410 |
900 |
|
29 |
100-100-15-2000-7.5 |
200 |
700 |
440 |
370 |
410 |
900 |
|
30 |
100-80-20-2000-7.5 |
180 |
585 |
370 |
270 |
320 |
900 |
|
31 |
100-50-35-2000-11 |
180 |
585 |
370 |
270 |
320 |
940 |
|
32 |
100-70-22-2000-7.5 |
180 |
585 |
370 |
270 |
320 |
900 |
|
33 |
100-100-22-2000-15 |
230 |
815 |
515 |
455 |
495 |
970 |
|
34 |
100-80-30-2000-15 |
230 |
815 |
515 |
455 |
495 |
970 |
|
35 |
150-150-10-2000-7.5 |
213 |
775 |
495 |
360 |
405 |
920 |
|
36 |
150-210-7-2500-7.5 |
242 |
830 |
540 |
365 |
410 |
950 |
|
37 |
150-250-6-2500-7.5 |
242 |
830 |
540 |
365 |
410 |
950 |
|
38 |
150-150-15-2500-11 |
220 |
770 |
495 |
345 |
395 |
990 |
|
序号 |
型 号 |
A |
B |
C |
D1 |
D |
H |
|
1 |
150-200-10-2500-15 |
220 |
770 |
495 |
345 |
395 |
990 |
|
2 |
150-65-40-3200-18.5 |
250 |
930 |
595 |
440 |
495 |
1206 |
|
3 |
150-180-22-2600-18.5 |
270 |
930 |
595 |
440 |
495 |
1226 |
|
4 |
150-150-26-2600-18.5 |
270 |
930 |
595 |
440 |
495 |
1226 |
|
5 |
150-110-30-2600-18.5 |
270 |
930 |
595 |
440 |
495 |
1226 |
|
6 |
150-300-15-2600-22 |
300 |
900 |
575 |
440 |
495 |
1265 |
|
7 |
150-130-30-2600-22 |
270 |
930 |
595 |
440 |
495 |
1226 |
|
8 |
150-100-40-3000-30 |
270 |
930 |
595 |
440 |
495 |
1200 |
|
9 |
200-300-7-3000-11 |
270 |
945 |
605 |
400 |
445 |
1130 |
|
10 |
200-250-11-3000-15 |
270 |
945 |
605 |
400 |
445 |
1130 |
|
11 |
200-300-10-3000-15 |
270 |
945 |
605 |
400 |
445 |
1130 |
|
12 |
200-250-15-3000-18.5 |
270 |
945 |
605 |
400 |
445 |
1226 |
|
13 |
200-400-10-3000-22 |
270 |
945 |
605 |
400 |
445 |
1226 |
|
14 |
200-200-20-3000-22 |
297 |
980 |
630 |
440 |
495 |
1236 |
|
15 |
200-250-22-3000-30 |
297 |
980 |
630 |
440 |
495 |
1236 |
自动耦合式安装示意图

自动耦合式安装平面图
曲线图谱
结构特点说明
JYWQ型自动搅匀潜水排污泵(结构图)



